Cyfryngau Cymdeithasol

4,5,11 Cae Bryn Hyfryd, Llanrwst Conwy

3 Tŷ pâr 3 lloft 5 person

  • Conwy
  • 3 Ystafelloedd Gwely

Bydd ceisiadau am yr eiddo hwn ar gau: 23.04.26 at 09:00

*Os hoffech wneud cais am yr eiddo yna cliciwch y ddolen yma 4,5,11 Cae Bryn Hyfryd, Llanrwst Conwy – Fill out form

3 Tŷ pâr 3 lloft 5 person ar gael trwy'r Cynllun Rhent Canolraddol hefo Adra.

Mae’r eiddo’n cynnwys lolfa, cegin/ystafell fwyta, ystafell lyb lawr grisisau,, 3 llofft, ac ymolchfa.

Pympiau gwres ffynhonnell aer

Ffenestri a drysau gwydr dwbl UPVC

Gerddi yn y cefn yn cynnwys sied

Ardal parcio oddi ar y ffordd ar gyfer 2 gar

Mae darpariaeth yn y dyfodol ar gyfer pwynt gwefru cerbydau trydan

Mae’r eiddo yn elwa o baneli solar

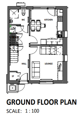
Ystafell Fyw

Cegin / Ystafell fwyta /

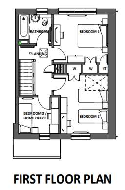
Lloft 1

Lloft 2

Lloft 3

Carpedi a lloriau yn cael ei gynnwys yn yr eiddo

Rhent misol - £862.36 - Mae’n rhaid i’r rhent gael ei dalu mis o flaen llaw drwy Ddebyd Uniongyrchol neu ddull tebyg.

Tal Gwasanaeth - £17.64 yn fisol yn ychwanegol ir rhent

Blaendal - 1 mis o daliad rhent i’w dalu o flaen llaw fel blaendal ar ddechrau’r denantiaeth yn ogystal ar rhent am y mis cyntaf. Bydd y blaendal yn cael ei gadw o dan delerau’r Deposit Protection Service (DPS). Cyfanswm = £1,742.36

Isafswm incwm i'w ystyried (incwm o cyflogaeth a credydau threth) - £35,200

Eiddo ar gael Mai 2026

Mae’r eiddo yn cael ei osod ar sail contract safonol misol. Cyn belled â gedwir at dermau’r contract, mae ein hymrwymiad i chi yn un tymor hir.

Meini Prawf Preswylio:

Mae’n rhaid i ymgeiswyr fod yn / neu wedi byw neu weithio yn yr ardal / cymuned (Llanrwst) am y 12 mis blaenorol neu gyda chysylltiad teuluol agos gydag aelod o’r

teulu wedi bod yn byw yn y gymuned am o leiaf 5 mlynedd.

Os nad oes digon o ymgeiswyr o’r gymuned leol, yna fe wnawn ystyried ceisiadau o gymunedau cyfagos cyn agor allan i ymgeiswyr o rannau eraill o Sir Conwy.


Bydd pob eiddo yn destun cyfamodau a osodir gan y Datblygwr, gan gynnwys

(ond heb fod yn gyfyngedig i) y canlynol:

• Rhwymedigaethau mewn perthynas â Waliau Cydrannol a ffensys

• Cyfyngiadau ar barcio

• Cyfyngiadau Defnydd a Galwedigaeth

• Cyfyngiadau a rhwymedigaethau sy'n ymwneud â Gerddi Blaen a Chefn

• Cyfyngiadau ar addasiadau a gwaith adeiladu

• Rhwymedigaethau'n ymwneud â chynnal a thirlunio Coed, Llwyni ac ymylon

• Rhwymedigaethau'n ymwneud â Charthffosydd a Gwasanaethau Eraill,

• (gan gynnwys cydsynio i Hawddfreintiau)

• Cyfyngiadau ar osod Arwyddion

• Cyfyngiadau ar gadw a bridio Anifeiliaid

• Rhwymedigaethau mewn perthynas â Thâl Gwasanaeth

• Unrhyw rwymedigaethau neu gyfyngiadau ychwanegol eraill fel y'u gosodir

• gan y Datblygwr.

Nodwch os gwelwch yn dda: Nid yw'r rhestr uchod yn derfynol ac mae'n destun

newid.

Bydd copi papur yn rhestru'r Cyfamodau perthnasol ar gael wrth arwyddo, ond gellir

darparu copïau cyn hyn ar gais.

Rydym yn cadw'r hawl i ddod a'r dyddiad cau ymlaen os derbynnir digon o ymgeiswyr.

Nodwch, os gwelwch yn dda, mai eich cyfrifoldeb chi yw sicrhau bod y manylion ar eich ffurflen gais yn gywir ar adeg gwneud cais am eiddo gan y gallai effeithio ar eich lle ar y rhestr fer. Os oes angen diweddaru eich manylion, gwnewch yn siŵr eich bod yn rhoi gwybod i ni cyn dyddiad cau'r eiddo. Ni fydd manylion sy'n cael eu diweddaru ar ôl creu'r rhestr fer yn cael eu hystyried.


Manylion Eiddo

  • Cyfeiriad:
  • Cod Post: LL26 0AN
  • Ystafelloedd Gwely: 3
  • Math o Eiddo: Eiddo Newydd

Gwerth Eiddo

Pris Marchnad Agored Pris Fforddiadwy Blaendal fydd ei angen
n/a £862.36 £1,742.36

Angen Cymorth?

Croeso i chi gysylltu â ni i drafod y broses cofrestru/eich cais neu gynllun penodol. Manylion cysylltu wedi ei nodi isod:

Ffôn: 03456 015 605
Ebost: info@taiteg.org.uk

Dewiswch iaith

Please select a language

Cymraeg English